成都正式官宣!批准十陵南站(暂名)接入的地铁2号线、30号线两条轨道交通站点分别

龙潜沧海待云起 2025-07-22 14:36:36

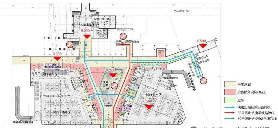
成都正式官宣!批准十陵南站(暂名)接入的地铁2号线、30号线两条轨道交通站点分别命名为: [比心]【龙泉驿火车站】 [比心]【龙泉驿火车站南站】 有网友说都什么年代了,还叫火车站这跟成都都发展不符呀! 一边是十陵南站,一边又是龙泉驿火车站。虽然十陵南站将来可能会更名为东泉驿火车站。总感觉不对劲儿,档次好像回到了上个世纪,并且跟成都火车南站是否发生混淆呢? 但现在定都定了,肯定有其依据,习惯了就好了。实际上叫龙泉驿火车站,是为了区别于地铁2号线龙泉驿站。关键是2号线和30号线又不能够在站内换乘,所以说为了区别起见,才这样命名的吧。 #城市观察员#

0 阅读:170

评论列表

林俭

林俭

3
2025-07-22 19:16

请问会有高铁吗?

梦幻岛的彩虹

梦幻岛的彩虹

2
2025-07-22 17:48

几公里一个火车站有毛用。

龙潜沧海待云起

龙潜沧海待云起

龙潜沧海待云起