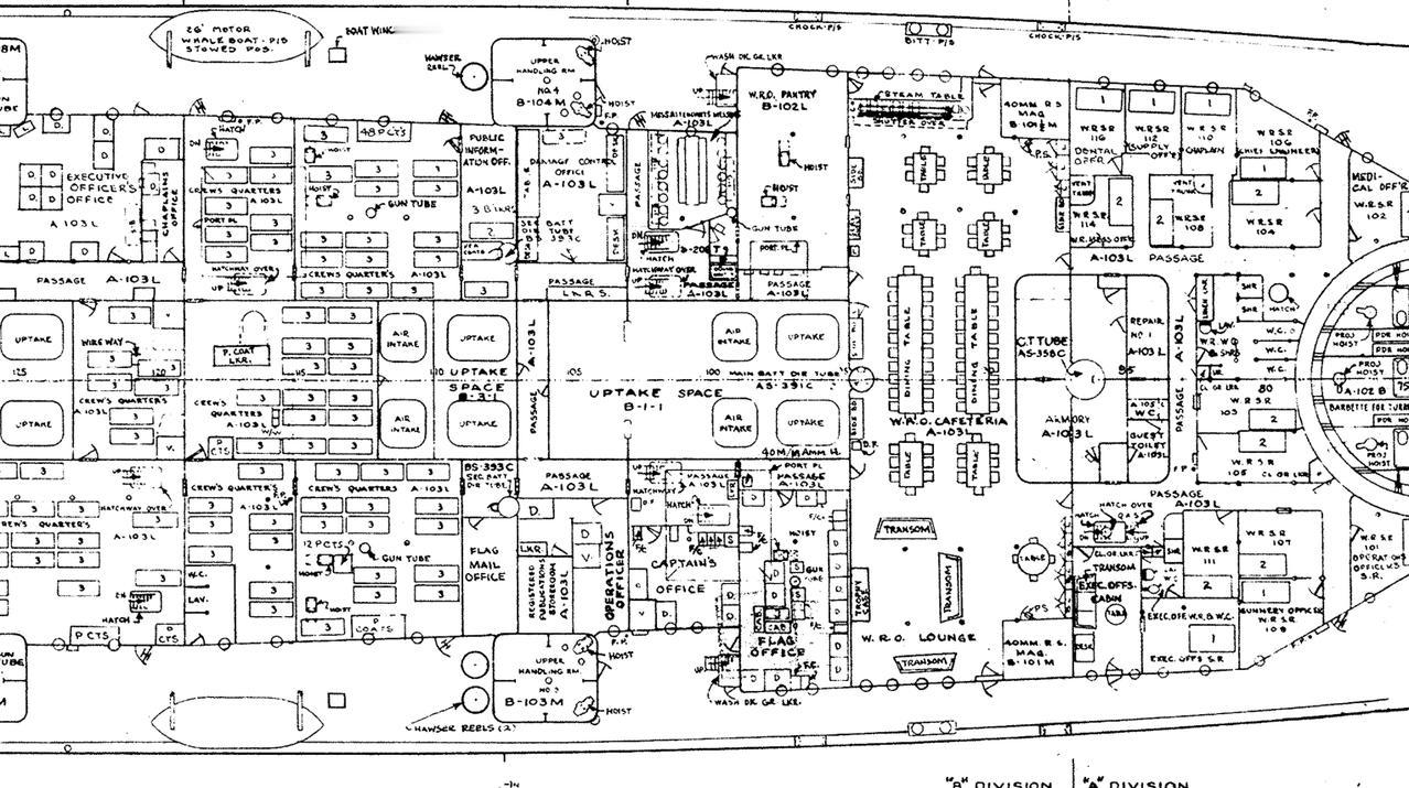
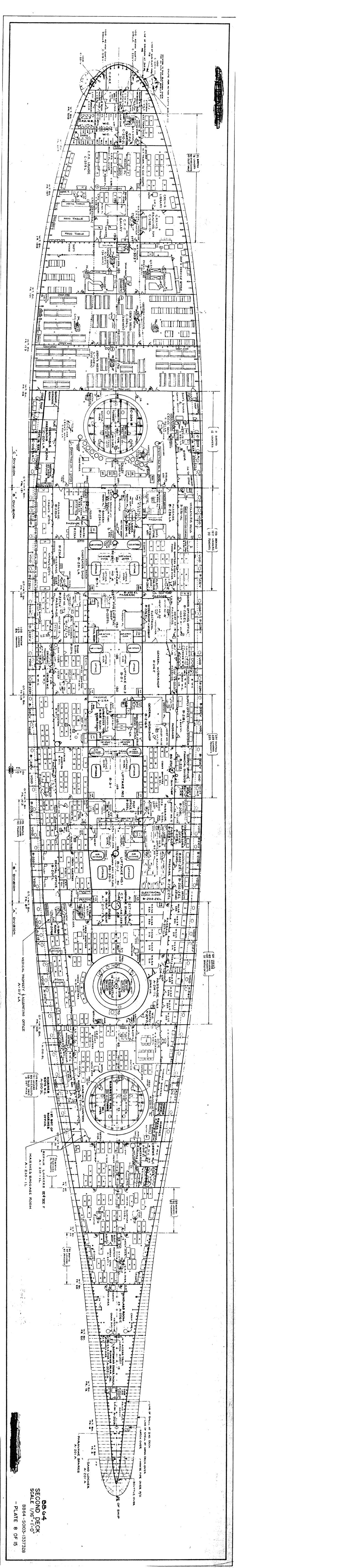
特郎普说要重启战列舰,我担心美国的战列舰图纸丢失了,毕竟登月的图纸都丢失了,何况一百年前的战列舰,幸好我手上有全套的衣阿华级战列舰的图纸,准备寄给美国,大家认为如何,但是特郎普还有三年任期,可能下台了新战列舰还没开工,甚至博物馆的战列舰也修不出来。因为美国海军订单都极不稳定,面临着断炊的美国造船业在持续衰退,可供建造和维修舰艇船坞降至20个以下,船舶装配、焊接和铸造的熟练工人流失了2万人,整个造船业精气神都在下降,管理松懈、水平滑坡、基础设施落后、工装具状况不佳,建造质量不断下降,事故层出不穷,濒海战斗舰、朱姆沃尔特”级隐身驱逐舰、“福特”号航母各种故障更是令海军不胜其烦,连军舰的维修计划也仅有47%按时完成,维修中的军舰还经常发生火灾,下滑的颓势根本无力扭转,就算有全套的衣阿华级战列舰的图纸,美国也未必造得出来,发明蒸汽弹射的英国现在也造不出弹射航母了。







yu
这美利坚什么登过月球?那是在摄影棚里拍给前苏联看的,目的是想拖垮前苏联。