三层半刚刚好!13.1米x10.8米的宅基地农村自建房效果图和设计图纸! 现在

依祥评综合 2025-10-24 08:59:10

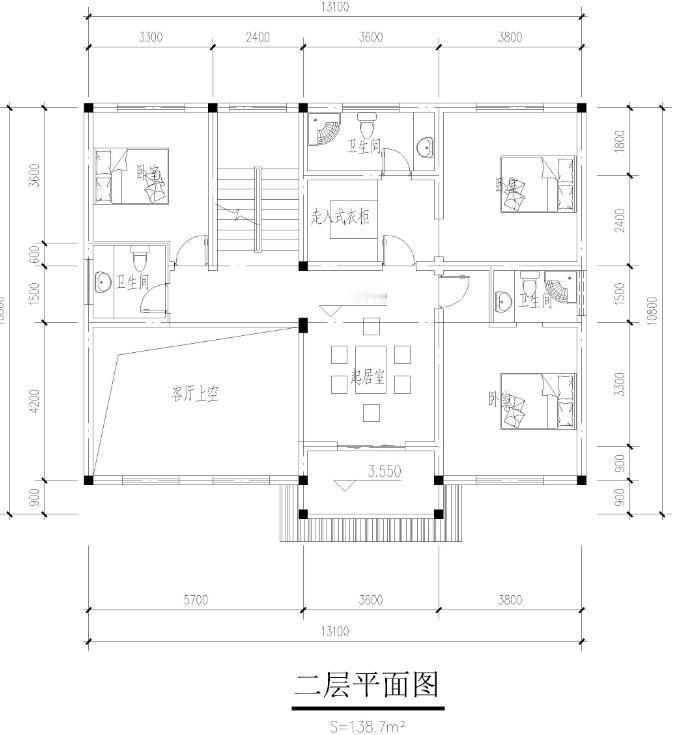
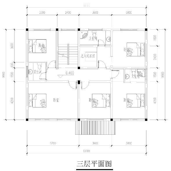
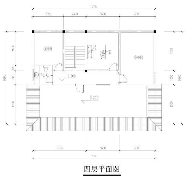
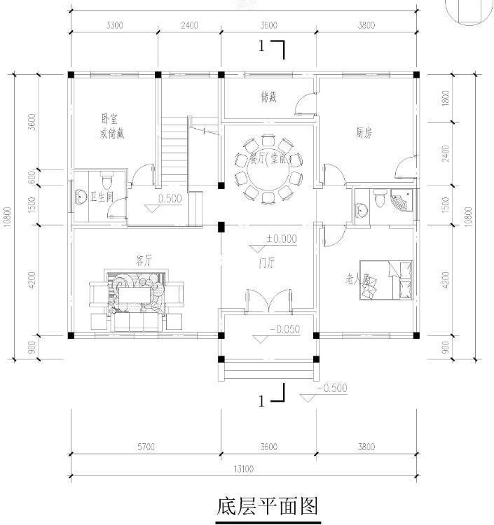
三层半刚刚好!13.1米x10.8米的宅基地农村自建房效果图和设计图纸! 现在农村宅基地越来越值钱了,把城里的房子卖掉,花100万元到农村老家建套自建房真爽! 这种三层半,或者说小四层的自建房,住起来非常舒服,地方不需要很大,130多平方米的宅基地上面就可以建设,建设成本估计也就是百万元左右。 在农村宅基地上自建房,可以传承给下一代,还可以随意按自己风格建设和装修,比起城市楼盘小区舒服太多了,大家觉得呢?

0 阅读:19
依祥评综合

依祥评综合

感谢大家的关注