看完武汉这位阿姨的家,我直接被戳中了!187㎡的房子,退休阿姨每天种花画画,装修

星空看综合 2025-11-25 18:15:29

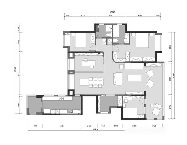
看完武汉这位阿姨的家,我直接被戳中了!187㎡的房子,退休阿姨每天种花画画,装修用原木+留白,改玄关保隐私、加书房满足书法爱好、打通阳台增通透,每处都藏着对生活的热乎劲儿!这才是中国人刻在骨子里的优雅啊! 没有花里胡哨的堆砌,全是贴己的细节——玄关的迂回设计遮卫生间,岛台留了火锅插座,沙发围合式让家人更亲近,连书房的格栅都透着“犹抱琵琶半遮面”的含蓄!这样的家不是装出来的,是“把日子过进空间里”的用心。 咱们中国人的优雅从不是靠贵价家具撑的,是原木的温、留白的静,还有阿姨每天摆弄花草的认真——这才是最有品味的“家的样子”! 你们说,是不是咱中国人的家,越懂生活越有味道?这样把日子过成诗的武汉阿姨家,有没有戳中你对“理想生活”的想象?

0 阅读:2
星空看综合

星空看综合

感谢大家的关注