泡泡资讯网

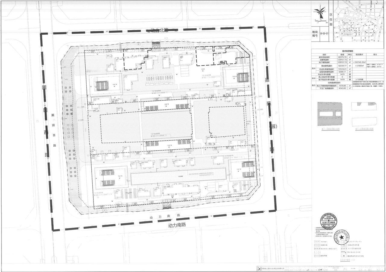
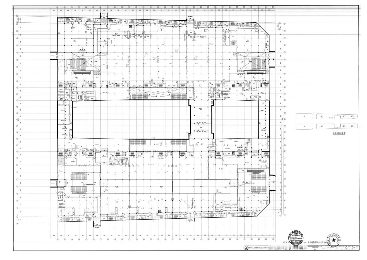
公示,郑州胖东来项目平面布局图来了! 从布局来看,主要商业区在负一层,负二层局部

公示,郑州胖东来项目平面布局图来了!
从布局来看,主要商业区在负一层,负二层局部为商业区,剩余为停车区,负三也是停车区。其中负一层主商业区分为南北两个区域,中间是一个主要衔接通道,东西两侧各有一个小通道。
根据规划,建设用地面积68376.78平方米,总建筑面积129157.15平方米(地下建筑面积),其中商业建筑面积50239.77平方米,机动车库建筑面积72518.21平方米(满足1479辆车的停放),设备用房面积6399.17平方米。
另外,地上开敞楼梯间雨棚面积1070平方米、下沉广场雨棚面积4543平方米。