招商中旅壹江臻邸123/139户型解读丨图文版

纪灵看房产 2026-01-25 00:01:50
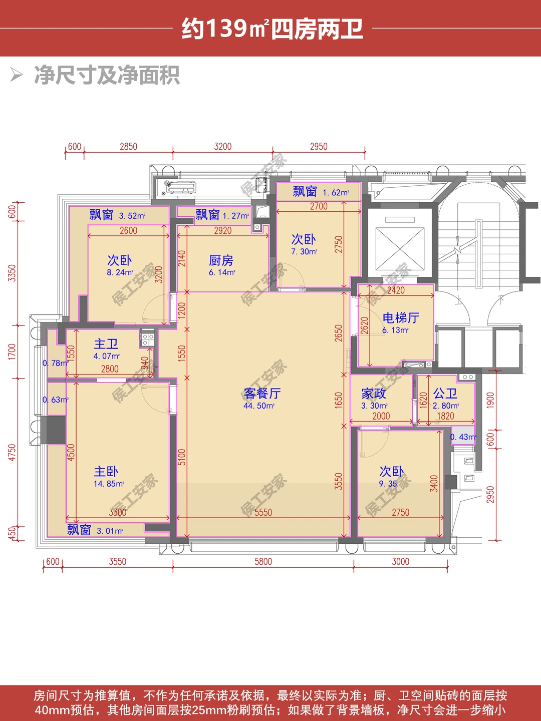
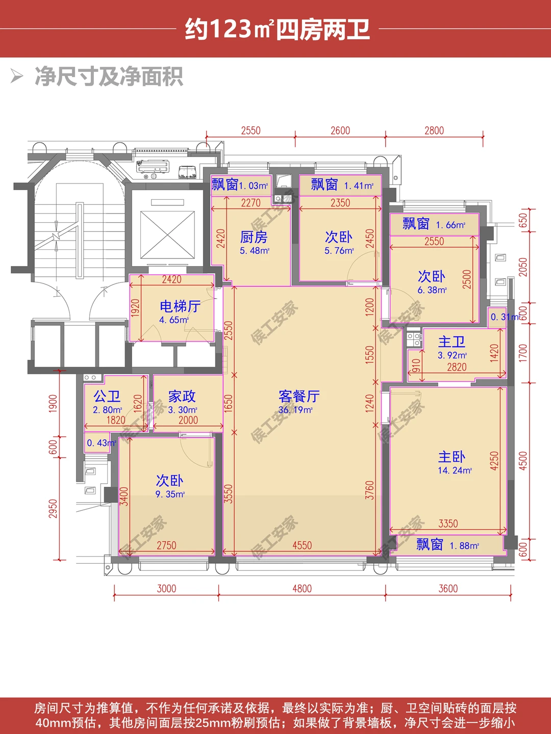
约123㎡能做到四房两卫,非常难得;主要是全屋附赠面积比较多:南向双阳台、一圈飘窗,附加值非常给力,而且飘窗结构墙垛都非常友好,方便利用;类一梯一户,私享电梯厅;飞机户型,中间超舒适客餐厅,没有过道空间的浪费;总体来说产品力非常不错; 约139㎡四房两卫户型,双阳台+三面全飘窗,极致的赠送力度;中间客餐厅结合阳台一体化打造,空间规整,面宽达到了5米8,净使用面积约45平方,非常夸张;类一梯一户、相对独立的电梯厅;独立家政区释放阳台空间;整体来说产品力极强,放眼整个上海市场也鲜有对手; 招商中旅壹江臻邸 唐镇 如未说明,涉及面积指建筑面积;开发商招商中旅,预售许可证浦东新区房管(2025)预字0000XXX号

0 阅读:0
纪灵看房产

纪灵看房产

感谢大家的关注